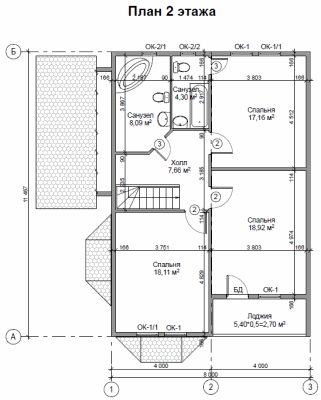
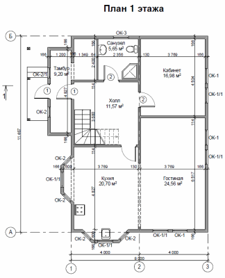
Общая площадь дома 170 м2
Площадь участка 11,91 сотки.
Каркасный дом. Установлены окна и двери.
Московская область, Клинский район, поселок "Вельга парк"
Отдел продаж. +7 (903) 509-53-53
velga@velgapark.ru
ПН - ВС 10:00-19:00
© 2012-2025 гг. "Вельга парк". Все права защищены